
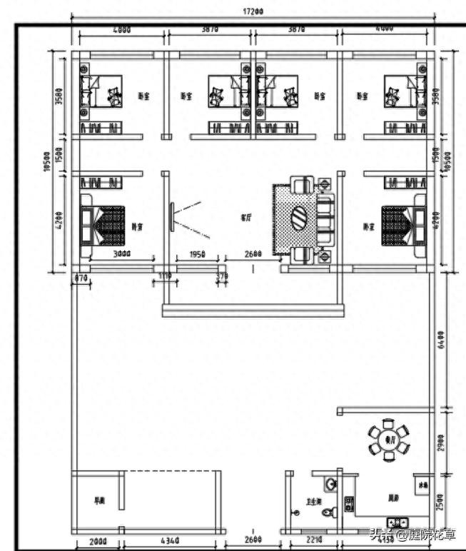
“怎么你们哪里的屋基地齐这样大?”
“不明晰。咱们那儿家家户户齐差未几,我这还算小的。”
“一驱动不是策划盖二层?”
“资金不够。原念念着能贷款,电话里说得好好的,真到办手续,又要这个阐扬注解又要阿谁活水……办不下来。”
“是以?”
“有多大身手,办多大事。不可打肿脸充胖子。”
“一层这样顶住行吗?”
“行,米兰就要这样。”
“两坡屋顶省点钱?”
“对,省。外不雅粗陋些就好。”

从二层降至一层的诊疗流程,体现了一种常见的民间贤达:在理念念与推行之间寻找可执续的均衡点。这种量度并非谐和,而是基于对自己要求的判辨默契,以及对“家”这一主张的骨子聚首——居住空间的果然价值不在于层数多寡或外不雅繁简,而在于它能否在现存要求下提供安定与惬意。
